Apartamenty w Sukošan
- 100 m do morza
- parking w garażu
- ogrzewanie podłogowe, klimatyzacja
- ogrzewanie słoneczne
- kamery bezpieczeństwa
- woda, pompa ciepła, prąd
- internet
Na sprzedaż apartamenty w budynkach mieszkalnych w Sukošan koło Zadaru. Nieruchomość składa się z 3 budynków z łącznie 18 apartamentami, z których 16 jest na sprzedaż.
Budynki mają 4 kondygnacje - piwnicę, parter oraz 1 i 2 piętro.
Budowa rozpocznie się w styczniu 2024 roku, a zakończenie planowane jest na styczeń 2025 roku.
Mieszkania na sprzedaż:
BUDYNEK A
Piwnica: 3 lokale usługowe (nie na sprzedaż, zakaz prowadzenia działalności gastronomicznej)
Parter:
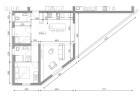
S2 (przedpokój, 2 łazienki, 3 sypialnie, przedpokój, toaleta, pralnia, kuchnia + jadalnia + salon, balkon) - 99,95 m2. Cena: 279 860 euro.
1 piętro:
S3 (WC, kuchnia + jadalnia, salon, przedpokój, 2 sypialnie, łazienka, loggia) - 76,88 m2. Cena: 215 250 euro.
S4 (przedpokój, 2 łazienki, 3 sypialnie, przedpokój, WC, pralnia, kuchnia + jadalnia + salon, balkon) - 99,95 m2. Cena: 279 860 euro.
2 piętro:
S5 (przedpokój, toaleta, kuchnia + jadalnia, salon, hol wejściowy, 2 sypialnie, łazienka, loggia, taras na dachu) - 111,41 m2. Cena: 356 512 euro.
S6 (przedpokój, 2 łazienki, 3 sypialnie, przedpokój, toaleta, pralnia, kuchnia + jadalnia + salon, balkon, taras na dachu) - 132,27 m2. Cena: 423 272 euro.
BUDYNEK B
Piwnica: 4 garaże z własnym przyłączem elektrycznym, 6 pomieszczeń magazynowych.
Parter:
S2 (hol wejściowy, kuchnia + jadalnia + salon, 2 sypialnie, łazienka, pomieszczenie gospodarcze, toaleta, zadaszony taras, balkon) - 68,54 m2. Cena: 191 898 euro.
1 piętro:
S3 (przedpokój, kuchnia + jadalnia + pokój dzienny, 2 sypialnie, łazienka, pomieszczenie gospodarcze, WC, zadaszony taras, balkon) - 68,54 m2. Cena: 191 898 euro.
S4 (przedpokój, kuchnia + jadalnia + pokój dzienny, 2 sypialnie, łazienka, pomieszczenie gospodarcze, WC, zadaszony taras, balkon) - 68,54 m2. Cena: 191 898 euro.
2 piętro:
S5 (przedpokój, kuchnia + jadalnia + pokój dzienny, 2 sypialnie, łazienka, pomieszczenie gospodarcze, WC, zadaszony taras, balkon) - 68,54 m2. Cena: 191 898 euro.
S6 (przedpokój, kuchnia + jadalnia + pokój dzienny, 2 sypialnie, łazienka, pomieszczenie gospodarcze, WC, zadaszony taras, balkon) - 68,54 m2. Cena: 191 898 euro.
BUDYNEK C
Piwnica: 4 garaże z własnym przyłączem elektrycznym, 6 pomieszczeń magazynowych.
Parter:
S1 (przedpokój, sypialnia, kuchnia + jadalnia + salon, łazienka, balkon) - 55,42 m2. Cena: 155 162 euro.
S2 (korytarz, 2 łazienki, pralnia, 2 sypialnie, kuchnia + jadalnia + pokój dzienny, taras / balkon) - 96,60 m2. Cena: 270 480 euro.
1 piętro:
S3 (korytarz, sypialnia, kuchnia + jadalnia + pokój dzienny, łazienka, balkon) - 55,42 m2. Cena: 155 162 euro. SPRZEDANE!
S4 (przedpokój, 2 łazienki, pralnia, 2 sypialnie, kuchnia + jadalnia + pokój dzienny, taras / balkon) - 96,60 m2. Cena: 270 480 euro.
2 piętro:
S5 (przedpokój, sypialnia, kuchnia + jadalnia + salon, łazienka, balkon, taras na dachu) - 86,51 m2. Cena: 276 832 euro.
S6 (przedpokój, 2 łazienki, pralnia, 2 sypialnie, kuchnia + jadalnia + salon, taras / balkon, taras na dachu) - 122,92 m2. Cena: 393 328 euro.
OPIS NIERUCHOMOŚCI:
Wszystkie 3 budynki zostały zbudowane przy użyciu wysokiej jakości nowoczesnych technologii, składają się z odpornej na trzęsienia ziemi konstrukcji żelbetowej. Ściany obwodowe są izolowane 10 cm izolacji termicznej i zawierają wodoodporny tynk wykończeniowy oprócz konwencjonalnego tynku.
Wszystkie apartamenty wyposażone są w wysokiej jakości plastikowe okna i drzwi z elektrycznymi roletami ALU i moskitierami.
Stolarka zewnętrzna jest montowana zgodnie z paletą RAL, a szyby są izolowane i wypełnione gazem ISO.
Instalacje elektryczne są wykonane zgodnie z najwyższymi standardami i obejmują nowoczesną gamę przełączników i gniazd firmy TEM Modul. Oświetlenie wewnętrzne i zewnętrzne zapewnia technologia LED.
Ogrzewanie i chłodzenie jest obsługiwane przez wysokiej jakości sprzęt klimatyzacyjny oddzielnie w każdym apartamencie. Ciepła woda jest podgrzewana przez własny bojler w każdym apartamencie.
Wyposażenie sanitarne pochodzi od renomowanych europejskich producentów. Apartamenty nie są wyposażone w meble, z wyjątkiem ceramiki sanitarnej i urządzeń sanitarnych w łazienkach. W łazienkach położono wysokiej jakości porcelanowe płytki ceramiczne.
Podłogi w każdym apartamencie są wyposażone w wysokiej jakości porcelanowe płytki ceramiczne, podłogi w pokojach są wyposażone w wodoodporny materiał podobny do laminatu imitującego drewno.
Apartamenty typu penthouse w budynkach A i C są również wyposażone w ogrzewanie podłogowe w całym mieszkaniu, które jest zasilane przez pompę ciepła. Ciepła woda jest podgrzewana przez systemy solarne na dachu i bojler elektryczny.